Аренда коммерческого помещения 104 м.кв в одном из лучших ЖК Новосибирска

ул Владимира Заровного, д. 28/1

182 000 руб.

?

$ 1 086

€ 979

1 747 руб./м²


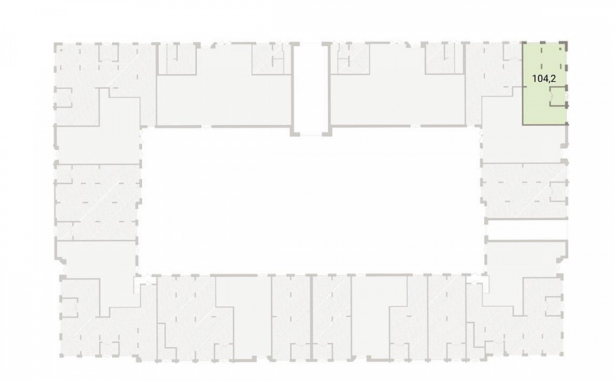
104.2 м²

1/9 этажей

Код объекта

129849

Предложение доступно для субагентов, авторизуйтесь

Аренда коммерческого помещения 104 м.кв в одном из лучших ЖК Новосибирска

Код объекта: 129849.
Тип объекта: Помещение свободного назначения.
Площадь: 104.2 м².
Этаж / Этажность: 1 / 9.

Описание и характеристики

От собственника! Без комиссии!

Характеристики:
- 1 линия, высокий пешеходный трафик
- Отдельная входная группа  (безбарьерный доступ)
- Есть возможность разместить вывеску
- Доступ 24/7
- ХВС/ГВС
- Центральное отопление
- Приточная вентиляция
- Максимальная мощность 15 кВт
- Предчистовой ремонт
- Высота потолков 3.3 м
- Шаг колонн 3,45м
- Пять больших панорамных окон
- Видеонаблюдение  по периметру здания
- Возможность перепланировки

Коммунальные услуги оплачиваются отдельно
Арендные каникулы на период ремонта

По всем вопросам можете обращаться к представителю собственника: Александр Королёв

Перейти в карточку объекта в CRM: 129849.

Александр

+7 924 177-52-77

или оставьте ваш номер, и я перезвоню в течение 30 минут

Отправляя заявку вы соглашаетесь на обработку персональных данных

182 000 руб.

?

$ 2 327

€ 1 976

1 747 руб./м²


104.2 м²

1/9 этажей

Код объекта

129849

Предложение доступно для субагентов, авторизуйтесь

Александр

+7 924 177-52-77

или оставьте ваш номер, и я перезвоню в течение 30 минут

Отправляя заявку вы соглашаетесь на обработку персональных данных

Похожие объявления

Посмотреть все похожие объявления
1/6
Код объекта: 382306.
Тип объекта: Помещение свободного назначения.
Площадь: 600 м².
Этаж / Этажность: 1 / 3.
1/8
Код объекта: 400937.
Тип объекта: Помещение свободного назначения.
Площадь: 167 м².
Этаж / Этажность: 1 / 3.
1/20
Код объекта: 394777.
Тип объекта: Помещение свободного назначения.
Площадь: 99.6 м².
Этаж / Этажность: 1 / 8.
1/7
Код объекта: 260531.
Тип объекта: Торговое помещение.
Площадь: 119 м².
Этаж / Этажность: 1 / 12.
1/8
Код объекта: 260527.
Тип объекта: Помещение свободного назначения.
Площадь: 146 м².
Этаж / Этажность: 1 / 5.
1/6
Код объекта: 260530.
Тип объекта: Торговое помещение.
Площадь: 65 м².
Этаж / Этажность: -1 / 4.
1/1
1/11
Код объекта: 307108.
Тип объекта: Отдельно стоящее здание.
Площадь: 305 м².
Этаж / Этажность: 1 / 1.

Не хочу искать, перезвоните мне!

Оставьте номер телефона, наш специалист свяжется с вами и поможет с подбором недвижимости!