Аренда торговых помещений в ТЦ "Кварц", от 30 м²

г.Заринск, пр.Строителей, 22

42 000 руб.

?

$ 1 086

€ 979

1 400 руб./м²


30 м²

1/3 этажей

Код объекта

116841

Предложение доступно для субагентов, авторизуйтесь

Аренда торговых помещений в ТЦ "Кварц", от 30 м²

Код объекта: 116841.
Тип объекта: Торговое помещение.
Площадь: 30 м².
Этаж / Этажность: 1 / 3.

Описание и характеристики

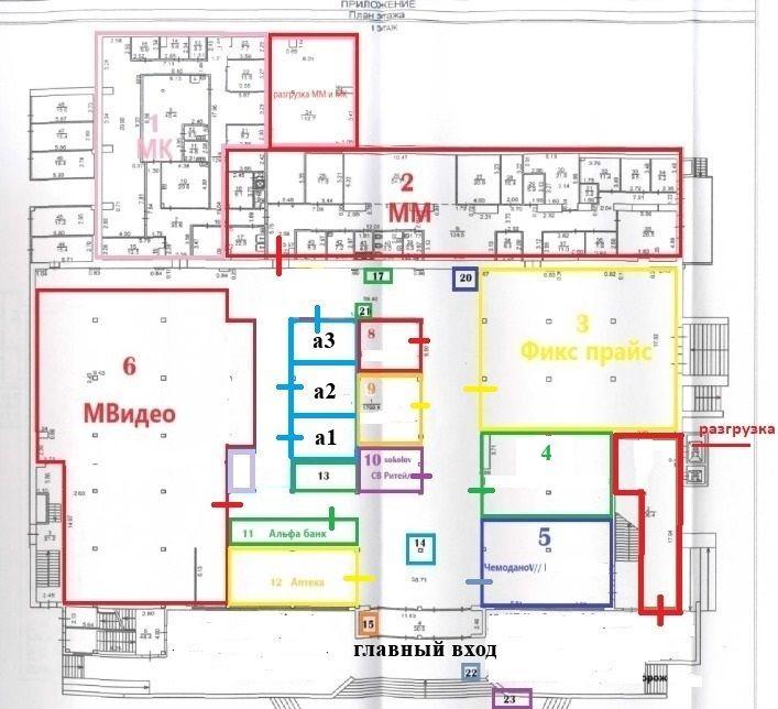
Сдаются торговые площади от 30 м2 на 1 этаже ТЦ "Кварц" г.Заринск.

Соседство: федеральные арендаторы "Магнит", "Магнит Косметик", "М-Видео", "Fix Price", "Kari", и др.

Стоимость: 1400 руб/м2

Местоположение:
- Район: 4-й микрорайон
- Адрес: Алтайский край, г.Заринск, пр.Строителей, 22
- Описание: Самый крупный ТЦ в г.Заринск. Первая линия. Транспортная развязка, центр города. Также, на парковке ТЦ проходят городские массовые мероприятия.

Характеристики:
- Тип здания: Торговый центр
- Этаж/Этажность: 1/3
- Расположение: входная группа ТЦ "Кварц"
- Площадь: 30 м2
- Высота потолков: более 4 м
- Коммуникации: центральные

Условия договоров аренды:
- Арендаторы: федеральная сеть "Магнит", "Магнит Косметик", "М-Видео", "FixPrice"
- Коммунальные услуги оплачивают арендаторы

Мы - агентство коммерческой недвижимости АРР, официальный управляющий партнер собственника этого объекта. Мы предлагаем вам услуги без комиссии

Перейти в карточку объекта в CRM: 116841.

Евгения

+7 913 385-95-00

или оставьте ваш номер, и я перезвоню в течение 30 минут

Отправляя заявку вы соглашаетесь на обработку персональных данных

42 000 руб.

?

$ 537

€ 456

1 400 руб./м²


30 м²

1/3 этажей

Код объекта

116841

Предложение доступно для субагентов, авторизуйтесь

Евгения

+7 913 385-95-00

или оставьте ваш номер, и я перезвоню в течение 30 минут

Отправляя заявку вы соглашаетесь на обработку персональных данных

Похожие объявления

Посмотреть все похожие объявления
1/6
Код объекта: 243104.
Тип объекта: Торговое помещение.
Площадь: 40 м².
Этаж / Этажность: 1 / 5.
1/6
Код объекта: 382408.
Тип объекта: Торговое помещение.
Площадь: 14 м².
Этаж / Этажность: 1 / 2.
1/8
Код объекта: 337156.
Тип объекта: Торговое помещение.
Площадь: 30 м².
Этаж / Этажность: -1 / 2.
1/7
Код объекта: 260531.
Тип объекта: Торговое помещение.
Площадь: 119 м².
Этаж / Этажность: 1 / 12.
1/8
Код объекта: 260527.
Тип объекта: Помещение свободного назначения.
Площадь: 146 м².
Этаж / Этажность: 1 / 5.
1/6
Код объекта: 260530.
Тип объекта: Торговое помещение.
Площадь: 65 м².
Этаж / Этажность: -1 / 4.
1/1
1/11
Код объекта: 307108.
Тип объекта: Отдельно стоящее здание.
Площадь: 305 м².
Этаж / Этажность: 1 / 1.

Не хочу искать, перезвоните мне!

Оставьте номер телефона, наш специалист свяжется с вами и поможет с подбором недвижимости!